︎
BARTOLONI & VENTALON ARCHITECTES
︎
︎
︎
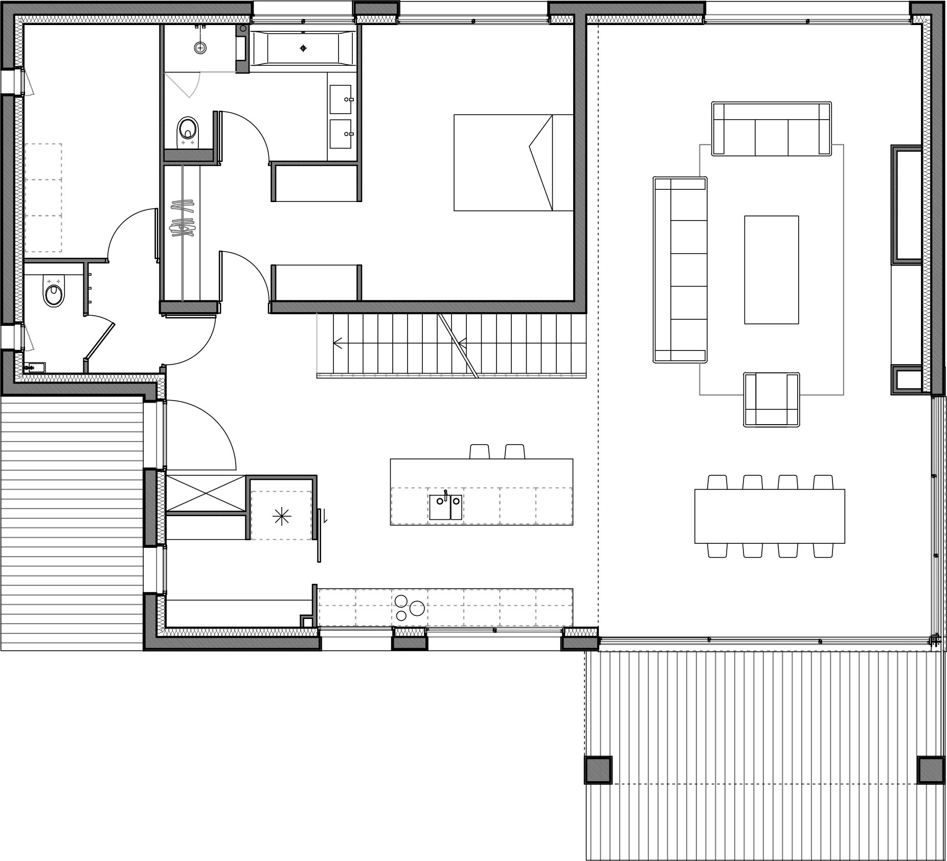
Maison E
Val d’Oise
© BEVA, FRANCE 2006-2026